CorelCAD™ 2014 — это эффективное, высокопроизводительное и экономичное решение САПР для выполнения повседневных работ по проектированию, требующих точности и тщательной проработки деталей.
Предприятиям, использующим системы автоматизированного проектирования, всегда было непросто выбирать программное обеспечение. Многие приложения, хотя и отвечают требованиям бюджета, зачастую не имеют необходимых инструментов или используют форматы, затрудняющие совместную работу и обмен данными. CorelCAD 2014 упрощает выбор: заказчикам предлагается недорогое полнофункциональное приложение для двухмерного автоматизированного проектирования с инструментами моделирования трехмерных объектов.
Работа с файлами CAD становится обычным делом для широкого круга профессионалов в области графики — от технических иллюстраторов до дизайнеров в отделах маркетинга. Таким образом, способность приложения открывать и заново использовать такие материалы САПР, как файлы .DWG, стала необходимостью, которая экономит организации время и деньги.
Собственный формат файлов CorelCAD (.DWG)поддерживает новейший формат файлов AutoCAD® DWG (R2013 .DWG, используемый в AutoCAD 2013/2014), что гарантирует полное соблюдение отраслевых стандартов. CorelCAD обрабатывает атрибуты файлов, относящиеся к неподдерживаемым функциям AutoCAD, и сохраняет все функциональные возможности файлов .DWG, благодаря чему не возникает проблем с преобразованием и совместным использованием файлов.
У тех, кто знаком с другими популярными САПР, переход на CorelCAD 2014 не вызовет затруднений. CorelCAD включает в себя ряд инструментов, команд и элементов интерфейса, присутствующих в другом программном обеспечении САПР, поэтому любой пользователь САПР сможет быстро приступить к работе, не затрачивая время на обучение.
Традиционно для САПР использовалась операционная система Windows, однако у Mac тоже есть свои приверженцы. В свете этого решение CorelCAD оптимизировано для обеих платформ — и предлагается по значительно более низкой цене, чем другое программное обеспечение САПР для Mac.

Категории пользователей
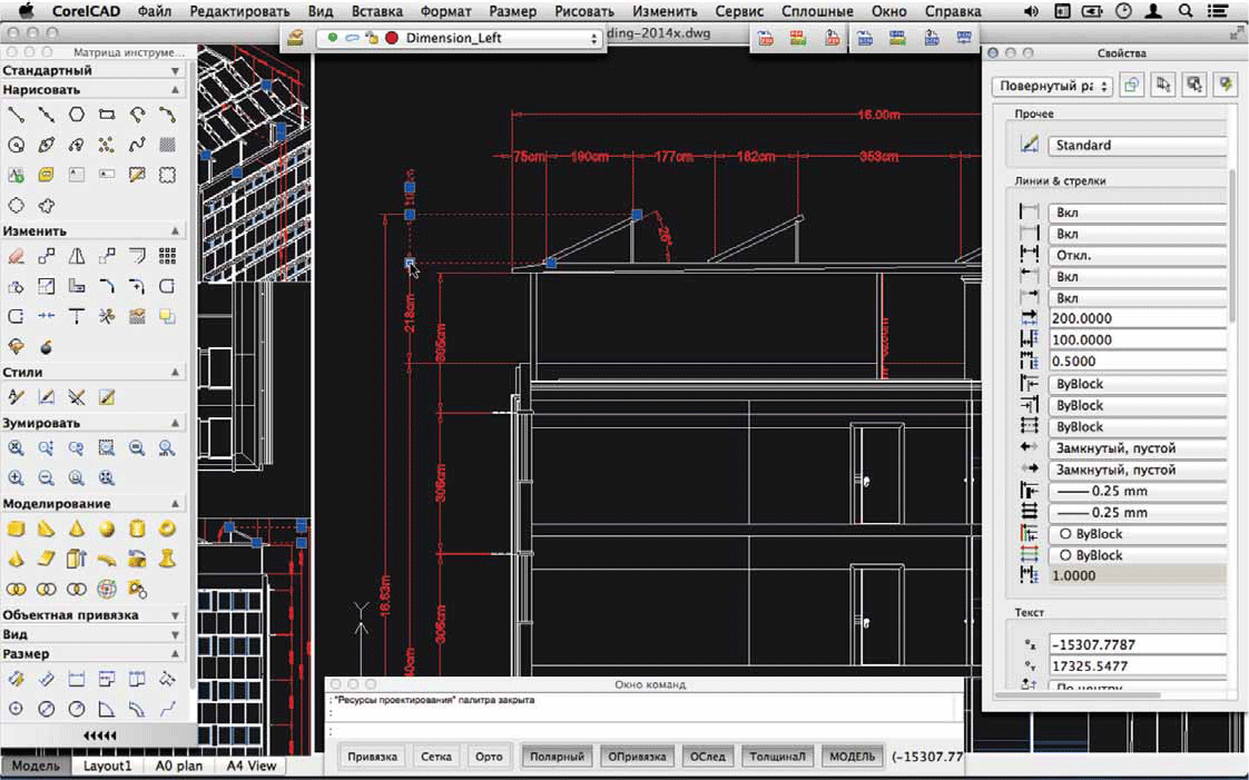
Архитекторы, инженеры и поставщики строительных услуг
В сфере архитектуры, конструирования и строительства проектировщики обычно работают с САПР в двухмерном режиме, однако трехмерному проектированию уделяется все больше внимания. Проектировщики работают в компаниях небольшого или среднего размера и создают различные изображения, в том числе двухмерные чертежи, строительные планы, боковые проекции, планы этажей и детальные схемы. Такие проекты с равной вероятностью могут создаваться с чистого листа или на основе существующих компонентов. Возможность сотрудничества и обмена файлами с коллегами и заказчиками играет важнейшую роль в рабочем процессе проектировщиков. Кроме того, многие архитекторы предпочитают использовать операционную систему Macintosh или работают в смешанной среде с Windows® и Macintosh. CorelCAD 2014 отвечает этим потребностям, являясь экономичным двухмерным приложением, которое соответствует стандартам и поддерживает моделирование трехмерных объектов. Возможность работы с форматом .DWG, включая файлы AutoCAD 2014 .DWG, устраняет проблему преобразования форматов при обмене файлами с коллегами или повторном использовании существующих файлов. Совместная работа упрощается и ускоряется благодаря поддержке голосовых примечаний и комментариев в редактируемых чертежах. Кроме того, файлы можно экспортировать в форматы CorelDRAW (CDR)*, Corel DESIGNER (DES)* и PDF, что упрощает обмен информацией с другими отделами компании, такими как отдел документации или маркетинга. К тому же решение CorelCAD 2014 оптимизировано как для Windows, так и для Mac OS, поэтому пользователи могут работать на той платформе, которую предпочитают.
* Только в версии для Windows.

Нерегулярные пользователи двухмерных САПР
Существует две группы нерегулярных пользователей двухмерных САПР, каждая со своими потребностями и рабочими процессами.
Во-первых, это проектировщики, работающие на крупных предприятиях в промышленном секторе.Хотя они в основном используют трехмерные САПР, им все равно нужна поддержка двухмерного режима. В частности, они разрабатывают сборочные схемы и деталировочные чертежи, и многие из существующих файлов, которые требуется сохранять, имеют формат двухмерной САПР (.DWG). Двухмерный эскиз часто служит основой для трехмерного проекта, и проектировщикам необходима возможность обработки трехмерных файлов для добавления деталей в двухмерные чертежи. Чтобы передавать результаты своей работы другим отделам, проектировщики экспортируют чертежи из САПР в различные форматы.Во-вторых, это графические дизайнеры, которым нужен инструмент редактирования файлов САПР, поддерживающий все элементы чертежей .DWG, такие как пространства моделей и макетные листы.Дизайнеры работают в отделах маркетинга и технической документации, и возможность работы с двухмерными файлами САПР позволяет им повторно использовать материалы проектов в руководствах пользователя, маркетинговых материалах и презентациях.
CorelCAD отвечает этим потребностям, являясь недорогим двухмерным приложением, которое соответствует стандартам и служит дополнением к трехмерным САПР. Возможность импорта чертежей из CorelDRAW (CDR) и экспорта САПР-чертежей в файлы форматов CorelDRAW и Corel DESIGNER* упрощает их применение для других целей. Это значит, что пользователи смогут сохранять и многократно использовать существующие материалы.
* Только в версии для Windows.
Автор: KonS
