Три года назад стал претворять свою давнюю мечту в реальность — максимальная домашняя автоматизация квартиры, купленной в новостройке с нуля. При этом «отделку от застройщика» пришлось принести в жертву умному дому
и полностью переделать, а вся электрика, не связанная с автоматикой приехала с известного китайского сайта. Паяльник не потребовался, но знающих мастеров, электриков и плотников пришлось искать долго.

Панель управления квартирой в феврале 2020 года (Home Assistant)
В этой статье расскажу о выборе технологий умного дома, используемых в квартире, а также приведу мои схемы разводки, фотографии всего что было сделано, получившиеся электрические щиты и конфигурации всех устройств, дам ссылку на гитхаб.

Строительство нашего дома в процессе — ноябрь 2016 года
Что я хотел в 2017 году?
Поскольку я стал владельцем квартиры на стадии котлована в 2015 году — у меня было в запасе время до сдачи квартиры в 2018 году, чтобы точно определиться какую технологию автоматизации я собираюсь использовать в своей квартире и самое главное: чем собираюсь управлять.
Мне хотелось выбрать самый лучший вариант и иметь следующие возможности:
По электрике:
- Управлять уровнями освещения во всех комнатах;
- Управлять освещенностью в зависимости от времени года и суток;
- Имитировать присутствие хозяев (при их отсутствии);
- Управлять шторами и жалюзи с электроприводом;

Получившаяся панель управления квартирой на базе Home Assistant в 2020 году — это мобильная версия управления светом
По учету энергоресурсов:
- Организовать сбор показаний со всех приборов учета в единую панель управления;
По системе аудио- и видеотехники. Мультируму:
- Иметь единый централизованный банк аудио-видео информации;
- Автоматически приглушать музыку при поступлении телефонного, дверного звонка;
- Автоматически выводить информационные сообщения о состоянии на экранах;
- Управлять отображением камеры наблюдения в коридоре на телевизоре в спальне;
- Управлять всеми устройствами домашнего кинотеатра;
По компьютерным системам:
- Управлять всеми системами из любой точки мира;
- Управлять всеми системами с любого компьютера в доме;
- Получать картинку с любой камеры видеонаблюдения из любой точки мира;
- Читать сообщения системы с любой сенсорной панели в квартире;
- Отслеживание присутствие конкретных людей, их время прихода/ухода;

Получившаяся панель управления квартирой на базе Home Assistant в 2020 году — это мобильная версия управления роботом-пылесосом
По системе видеонаблюдения:
- Заведение сигнала с камер наблюдения в систему мультирум;

Скриншот Home Assistant в 2020 году — камера и датчики на дверях
По системе вентиляции и кондиционирования воздуха. Системе отопления:
- Управлять температурой или влажностью во всех комнатах;
- Управлять вентиляцией в зависимости от температуры и влажности;

Скриншот панели управления квартирой в 2020 году (Home Assistant)
По системе метеоконтроля:
- Сбор метеоинформации внутри и вне дома (температура, влажность, ветер, атм. давление);
- Отразить необходимую информации на устройствах визуализации;
По системе холодного и горячего водоснабжения:
- Информация о протечках и их локализация;
Список получился внушительный, но я хотел иметь каждый пункт.
По проводу или по воздуху?
Теоретически в 2017 году проблем с выбором технологии «умного дома» не было. Вот отчет одного из европейских производителей:

Картинка из отчета 2017 года — используемые в умных домах технологии
Хочу отметить, что к 2017 году у меня был пятилетний опыт увлечения умными домами, начиная со специализированного Z-Wave стандарта, который не требует прокладки дополнительных проводов и ремонтных работ, и заканчивая доступным по цене проводным исполнительным устройством MegaD-328, которое невозможно использовать без штробления стен. Как раз между этими полюсами у меня был дополнительный опыт с недорогими вариациями китайских микроконтроллеров ESP8266 с Wi-Fi интерфейсом в различных заводских реле и датчиках. Но раз была возможность в квартире сделать все с нуля, то в первую очередь я рассматривал проводной вариант и это были следующие интерфейсы и продукты:
- KNX
- Loxone
- Wiren Board
- ПЛК ОВЕН
- MegaD 2561
Очень долго я присматривался к децентрализованной KNX шине, которая не привязана к конкретному вендору. Я даже побывал у нескольких инсталляторов в Перми и в Москве, но озвучиваемые суммы только за оборудование (~700к руб.) ошарашивали. В итоге от KNX пришлось отказаться.
Wiren Board и Loxone тоже отпали по финансовым соображениям.
ПЛК ОВЕН мне показалось слишком топорным для озвученных задач — все же это промышленная автоматика.
Так что вариант остался только один — контроллер MegaD 2561 из Самары. К тому же опыт работы с ним у меня уже был.
Попытка привлечь к моей затее застройщика
Я предпринял попытку изменить электропроводку квартиры силами застройщика для чего составил запрос:
Прошу сообщить о возможности изменить прокладку осветительных сетей с обычной схемы освещения на прокладку для последующего использования в системе проводной домашней автоматизации по объекту долевого строительства 1-комнатная квартира № XXX, расположенная во XXX подъезде на XXX этаже дома по адресу г. Пермь, Свердловский район, квартал 179, ул. Революции, 48а, расчетной площадью 41,70 кв.м.
Прокладка сети электроосвещения для последующего использования в системе проводной домашней автоматизации подразумевает, что от каждого светильника, выключателя, розетки или потребителя электроэнергии идет отдельный электрический кабель до квартирного электрического щитка, где он маркируется во избежание путаницы и коммутируется необходимым образом. Электрический щиток при этом необходим размером не менее 48 модулей.
Отрицательный ответ прислали быстро.

Ответ застройщика
Составление рабочих проектов
После отказа застройщика от сотрудничества в 2017 году мной были составлены:
- проект размещения мебели;
- проекты разводки всех кабелей;
- проекты силовых щитов;
- схемы разводки для щитовых исполнительных устройств.

Проект расположения мебели в квартире 41 кв. м
Началось всё с проекта расстановки мебели и бытовой техники, а потом был разработан проект протяжки всех кабелей (ниже два из 8 разработанных листов).

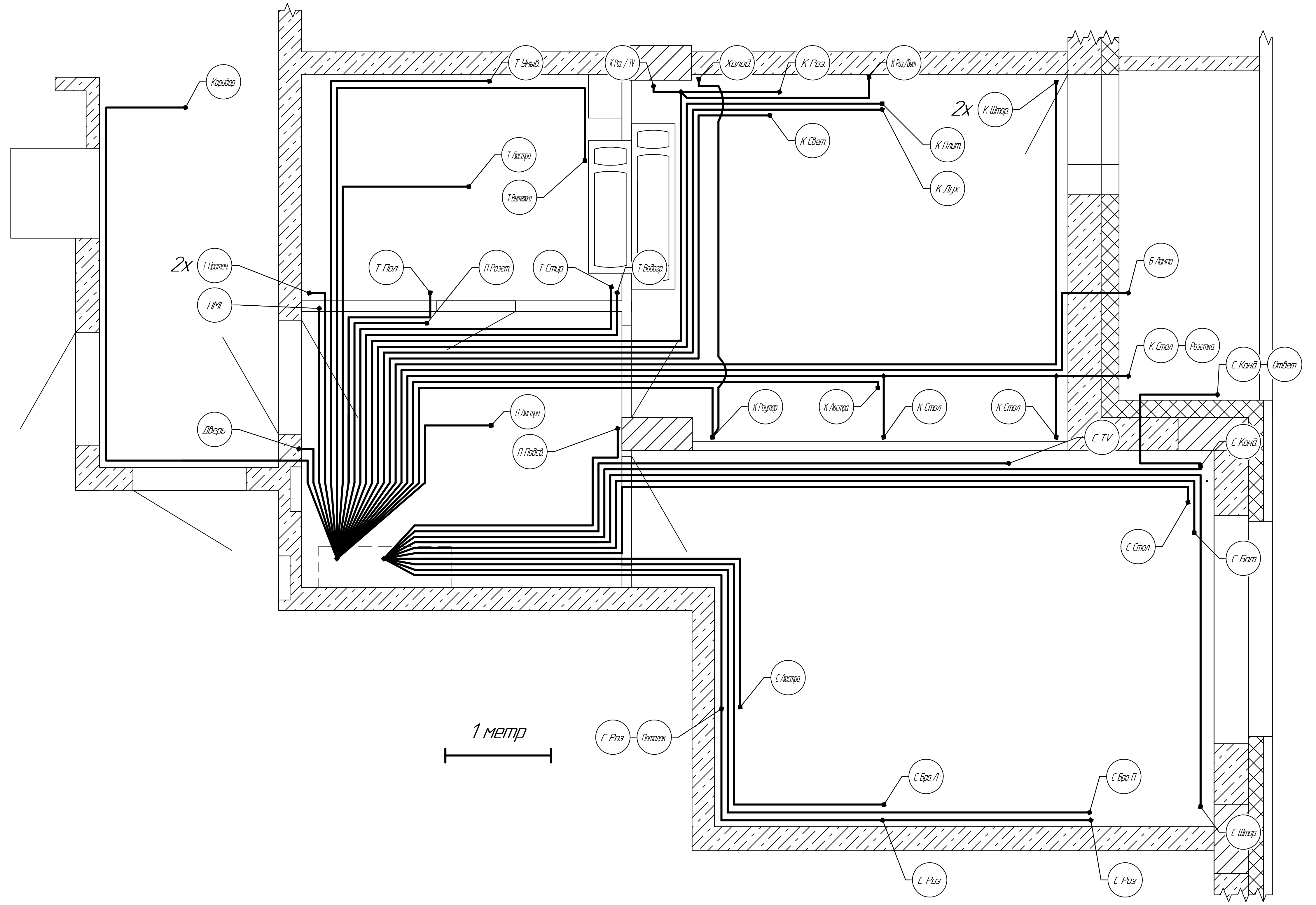
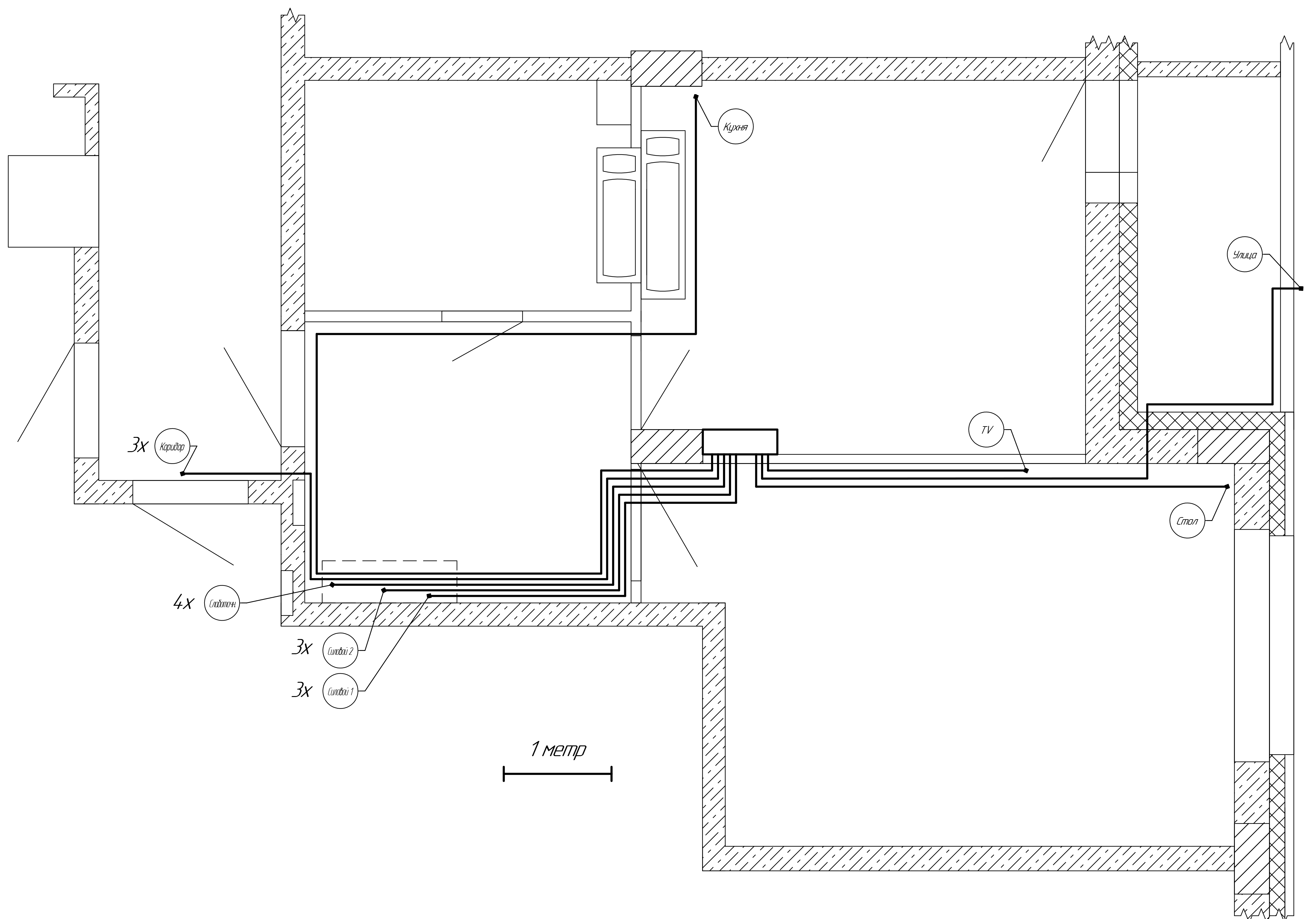
Схема прокладки силовых кабелей ВВГ 3х2,5; ВВГ 3х1,5; ВВГ 5х1,5

Схема прокладки витой пары UTP 5e
Дальше стал углубляться в тему и рисовать проекты силовых щитов, ниже представлен пример одного из 5 разработанных листов.

Один из трех электрических щитов
После этого пошло проектирование по автоматике: что и куда подключать, к какому порту — кабелей было слишком много. Автоматика с MegaD-2561. Ниже представлено два из восьми листов проекта “разводки”.

Разводка силовой части на исполнительном устройстве MegaD-2561
Практически все силовые линии протянуты от потребителя сразу в щиток — это сильно увеличило длину кабельных трасс, но я хотел сделать максимальную подготовку под автоматизацию.

Разводка подключения датчиков на устройстве MegaD-2561
Ремонтные и отделочные работы
После составления всех проектов и окончательной сдачи дома застройщиком начались работы по демонтажу существующего “ремонта” и электросетей застройщика.

Демонтаж ремонта в спальне
После демонтажа были начаты строительные работы, включающие в себя протяжку кабелей, вкупе со штроблением стен.

Протяжка новых кабелей
Во время ремонта приходилось довольно часто вносить изменения в проекты проводки, корректируя всё по месту.

Фото с черновой разводкой кабелей
Самое важное для домашней автоматизации — сведение в единое и удобное место всех кабелей. В качестве этого места я выбрал изготавливаемую строителями нишу — шкаф для вещей — расположенный в прихожей, рядом с входной дверью.

Три электрических шкафа — единое место сведения всех кабелей
Программные сложности настройки
После окончания ремонта в начале 2018 года началось самое интересное — настройка всех систем и подбор управляющих программ для умного дома.
И вот со всем этим были некоторые сложности. Потому что, если строители сделали весь ремонт примерно за 4 месяца, работая на стройке каждый день, то я уделял этому всего несколько часов и то не каждый день. Поэтому у меня ушло ещё три месяца на окончательную настройку.
В самом начале процесс тормозило то, что я не мог удалённо что-то настраивать: оператор связи подключал квартиры по GPON (Gigabit Passive Optical Network) и была конечная точка подключения в виде роутера Huawei, но мне хотелось чтобы у меня стоял MikroTik, потому что, на мой взгляд, он один из лучших по соотношению цена-качество на сегодняшний день. В итоге мечта осуществилась, но это ещё пара недель к времени затраченному на настройку.

Настройка Huawei HG8245H в 2018 году для работы в паре с MikroTik
У меня был отдельно организован коммутационный шкаф внутри квартиры под потолком для оборудования провайдеров связи — он заранее вписан в ремонт (можно посмотреть на схеме выше), к нему на стадии ремонта были протянуты не только витая пара, но и оптический кабель.
Домашняя автоматизация на openHAB и Home Assistant
Изначально я стал делать всю домашнюю автоматизацию на openHAB. И это не было быстрым стартом, хотя у меня уже был опыт с openHAB. Что из себя представляет эта система домашней автоматизации?
openHAB (расшифровывается как open Home Automation Bus) ведёт свою историю с 2010 года, когда его разработка была начата Kai Kreuzer в Германии в качестве открытой платформы для автоматизации зданий. В 2010 году практически не существовало подобных решений и openHAB во многом стал прообразом того многообразия систем умного дома, которое мы наблюдаем сейчас. Его идея проста: объединить на одной открытой программной платформе решения от различных производителей, независимо от протокола и технических особенностей. Это позволяет уйти от какого-то конкретного производителя и пользоваться всеми продуктами имея единый интерфейс управления.

Visual Studio Code. openHAB VS Code Extension
Самым главным исполнительным устройством домашней автоматизации в квартире стал проводной контроллер MegaD-2561 — именно он включает и выключает свет, получает показания со всех датчиков и счетчиков.
У него достаточно низкая цена по сравнению с аналогами ~3 500 руб. (на конец 2017 года) за контроллер плюс для работы требуется два дополнительных модуля, например:
Первый модуль: на 7 стандартных входов, 7 релейных выходов 0-220В (7*2300Вт/10А): ~3 000 руб (на конец 2017 года);
Второй модуль: 14 универсальных аппаратно-конфигурируемых входов + 1 релейный выход с возможность подключать как кнопки, так и цифровые датчики I2C, 1-wire и т.д.: ~3 000 руб (на конец 2017 года);
У меня в квартире установлено два комплекта, то есть это два контроллера и четыре дополнительных модуля.
Глядя на его относительно невысокую цену можно решить, что это идеальное устройство для домашней автоматизации, но это не совсем так. Это в первую очередь Geek DIY устройство, и если у вас нет достаточного запаса времени и терпения для первоначальной настройки и физического подключения, то оно НЕ для вас. Также MegaD-2561 не будет работать из коробки, как например Xiaomi Mi Home.
И если автоматизацией в вашей квартире или доме будете заниматься не вы, а специальная организация, то вам вряд ли предложат это устройство, потому что оно слишком низкомаржинальное для профессионального инсталлятора.
Но у меня было желание и время, чтобы разобраться во всем самостоятельно и при этом получить «взрослый» функционал (который это устройство может обеспечить при должной настройке), потому что по KNX, к которому я изначально присматривался мне насчитывали только за оборудование такую цену, которую я в итоге заплатил за весь ремонт, мебель и все работы по электрике, включая оборудование и датчики для автоматизации. А по KNX это была только цена оборудования без монтажа и настройки.
Моя конфигурация квартиры в openHAB 2.2 на GitHub:
https://github.com/empenoso/openHAB_one-room-apartment/
Сначала в квартире всё заработало, но уже через год я столкнулся с непреодолимыми сложностями с openHAB в самых простых вещах, которые в прошлом делал уже много раз. Поэтому в 2019 году принял решение перейти на Home Assistant.
Но это еще не конец истории, а только первая часть статьи. Вторую часть статьи подготовлю в течении двух недель.
Итог
В первой части статьи я рассказываю о чем я мечтал в 2016 году и что получил к середине 2018 года. Также рассказываю о моей провальной попытке привлечь застройщика к теме домашней автоматизации и о том, что меня привело к самостоятельному составлению всех проектов по автоматизации.
В статье привожу фотографиями со стройки с ремонтными и отделочными работами. Ещё жалуюсь на программные сложности в настройке и рассказываю о системе домашней автоматизации openHAB.
Во второй части приведу все финишные фотографии квартиры и все получившиеся электрические щиты, а также расскажу о тех сложностях, с которыми я столкнулся в другой системе домашней автоматизации — Home Assistant.
Автор: Михаил Шардин.
Иллюстрации: Михаил Шардин.
Иллюстрации, связанные с Home Assistant: Алексей Крайнев.
5 — 25 февраля 2020 г.
Автор: Михаил Шардин
