За последние дни я дал несколько интервью о ситуации на ЗАЭС. Например, для проекта Редакция. В этой статье я кратко опишу основные возможные аварийные ситуаций, которые могут возникнуть на станции, либо уже возникают. И их потенциальные последствия – что и куда может улететь, чем это грозит и даже как можно к этому подготовиться. В марте я уже писал подобную статью про риски аварий на Чернобыльской АЭС. И мне очень не нравится писать на такие темы, но какие времена — такая и атомная популяризация.

Дисклеймер
Понимаю, что тема горячая, но статья посвящена именно техническим моментам, и опубликована на российской плошадке, со всеми вытекающими последствиями. Поэтому прошу комментаторов воздержаться от политических дискуссий, которые запрещены правилами хабра. Для таких дискуссий есть другие прощадки и соцсети. И меня и мое мнение по более широкому кругу вопросов, связанных с Запорожской АЭС, можно найти в них. Гугл в помощь.
Особенности реакторов ВВЭР
Наиболее потенциально опасные в ядерном и радиационном смысле места станции – это реакторные отделения. Их на Запорожской АЭС шесть. В них находятся ядерные реакторы и первый радиоактивный контур энергоблоков, а также ядерное топливо. Причем не только внутри самих реакторов, но и отработавшее топливо в бассейнах выдержки. Но именно из-за потенциальной опасности реакторные отделения сильнее всего на станции защищены.
В отличие от чернобыльских реакторов РБМК, на Запорожской АЭС находятся водо-водяные реакторы ВВЭР-1000. ВВЭР гораздо более компактные, защищенные и безопасные реакторы сами по себе. У них гораздо более широкий диапазон режимов работы с отрицательной обратной связью, т.е. там невозможен такой разгон мощности как случилось на чернобыльском блоке в 1986 году после опускания стержней защиты.

Принципиальная схема энергоблока с реактором ВВЭР-1000. Источник.
В отличие от РБМК, ВВЭР двухконтурные, т.е. радиоактивный теплоноситель не выходит за пределы реакторного отделения. В них нет графита, как в РБМК, где его около 2000 т, и который в результате чернобыльской аварии за счет горения увеличил выброс радиоактивных веществ.

Схема реактора ВВЭР. 1 — привод СУЗ; 2 — крышка реактора; 3 — корпус реактора; 4 — блок защитных труб (БЗТ); 5 — шахта; 6 — выгородка активной зоны; 7 — топливные сборки (ТВС), регулирующие стержни; Источник
Сам реактор гораздо более компактный, его диаметр около 4,5 м, в том время как у РБМК активная зона диаметром около 11 м.

Это я выпрыгиваю из корпуса ВВЭР-1000 возле волгодонского Атоммаша. Можно оценить и диаметр и толщину корпуса. Хорошо видны отверстия под шпильки, которыми крепится верхний блок (обозначен цифрой 2 на схеме выше)
Ну и это не канальный, а корпусный реактор, причем его стальной корпус весьма прочный и имеет толщину стенок около 20 см, поскольку рассчитан на огромное рабочее давление более 150 атмосфер.

Компоновка первого контура ВВЭР-1000. Он замкнут внутри реакторного отделения, по нему циркулирует радиоактивный теплоноситель (вода со слабой примесью борной кислоты) в обьеме около 370 м3. Источник.
Такие водо-водяные реакторы, ВВЭР в советском союзе и России и PWR за рубежом – это самый распространенный тип реакторов в мире. Конкретно на Запорожской АЭС стоят шесть ВВЭР-1000 модификации В-320. Это сама распространенная модификация ВВЭР-1000, их было построено 25 штук, и все они до сих пор работают.

Ростовская АЭС — самая молодая российская станция с четырмя ВВЭР-1000 проекта В-320, как и на Запорожской АЭС.
10 ВВЭР-1000/В-320 работают в России на Балаковской, Калининской и Ростовской АЭС. 11 штук в Украине на всех АЭС — Запорожской, Южно-Украинской, Ровенской и Хмельницкой АЭС. А также по два таких блока работают в Болгарии и Чехии на АЭС Козлодуй и Темелин, соответственно.

Два ВВЭР-1000 на АЭС Темелин в Чехии.
Это проект конца 1970-х, начала 1980-х годов, причем на Запорожской АЭС такие реакторы, модификации В-320, были построены одними из первых. Шесть ее блоков запущены в работу с 1985 по 1996 г. Да, Запорожская АЭС – крупнейшая АЭС и в Европе, и в Украине. Ее мощность в 6 ГВт составляет почти половину всех мощностей АЭС Украины, т.е. она сопоставима по мощности с тремя другими украинскими станциями. При этом поскольку в Украине АЭС обеспечивали около половины всей электроэнергии, можно сказать что одна Запорожская АЭС – это около четверти всех электромощностей страны. Так что это сам по себе чрезвычайно важный энергообъект для Украины.

Шесть блоков ВВЭР-1000/В-320 крупнейшей АЭС Европы, Запорожской АЭС
В России тоже, кстати, нет таких мощных станций с шестью гигаваттными блоками. В свое время планировалось, что Балаковская АЭС будет сестрой близняшкой Запорожской, тоже с 6 такими блоками, они строились почти одновременно. Но в итоге после развала СССР на Балаковской достроили лишь 4 энергоблока ВВЭР-1000 модификации В-320. Обо всем этом я писал в одной из прошлых своих статей с обзором всех АЭС России, почитайте (ссылка).

Компоновка энергоблока с ВВЭР-1000/В-320
Возвращаясь к важным отличиям ВВЭР от РБМК, конечно, надо сказать об одной из главных особенностей ВВЭР-1000 – их реакторные отделения герметично закрыты со всех сторон единой бетонной защитной оболочкой – контейнментом, или гермооболочкой. Вы могли видеть ее на многих картинках выше. Именно на ВВЭР-1000 в начале 1980-х в СССР ее стали строить серийно. На предыдущих проектах реакторов их не было.

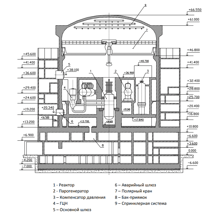
Разрез реакторного отделения ВВЭР-1000 с размерами.
Стены контейнмента из предварительно напряженного бетона имеют толщину в 120 см. Его диаметр около 45 м, а высота около 60 м. Основная задача контейнмента – предотвратить выброс радиации наружу в случае аварии на самом реакторе. Внутри реактора ВВЭР-1000 циркулирует вода под давлением более 150 атмосфер. В случае его разгерметизации весь вырвавшийся радиоактивный пар как раз удержится внутри контейнмента, он на это рассчитан.
Сейчас я как раз дописываю большую статью про эволюцию ВВЭР и в том числе про их системы защиты, так скоро смогу рассказать об этом всем подроднее.

Фото со строительства контейнмента Балаковской АЭС. Можно оценить серъезность конструкции — это периметр купольной части. Хорошо видны концевики тросов для преднапряжения бетона. Внизу фото даже есть люди, для масштаба.
Кроме внутренних аварий, контеймент, конечно, защищает и от внешних воздействий, как погодных, так и техногенных. Например, он рассчитан на падение небольшого легкомоторного самолета массой до 6 тонн. Мало? Возможно. Но, во-первых, защита АЭС от падения самолетов обеспечивается и организацией бесполетной зоны над блоками. А во-вторых, напомню, что это проект 1980-х, это реакторы второго поколения. Современные же проекты АЭС, в частности ВВЭР-ТОИ, которые строятся сейчас в России и Турции, уже имеют двойные контейнменты большей толщины и рассчитаны на падение полноценного 400-тонного Боинга-747. Кроме контенмента, конечно, после этого мало что устоит, но радиационной аварии в итоге быть не должно. Но все это, к сожалению, не про Запорожскую АЭС.
Если разрушить энергоблок
Тем не менее, ни один энергоблок АЭС не рассчитан на боевые действия и угрозы. Это мирный гражданский объект, а не военный бункер. Поэтому артобстрел в худшем случае может привести к повреждению контейнмента, образованию трещины или даже пробоин. Рассыпаться целиком он скорее всего не сможет, все же это купольная армированная железобетонная конструкция.
Само по себе разрушение контейнмента не вызовет ядерной аварии. Он нужен лишь для локализации последствий возможной аварии. Если реактор не поврежден, то теоретически он может работать и без контейнмента. Только если в результате обстрела будет пробит и сам бетонный контейнмент, и будет попадание в сам реактор или оборудование первого контура – тогда возможна его разгерметизация и выброс радиоактивного пара. В худшем случае, если будет попадание в сам реактор – то выброс вместе с ядерным топливом. Однако это возможно лишь в результате целенаправленного и длительного обстрела контейнмента, либо в результате использования специальных боеприпасов. Случайным снарядом или бомбой такое не сделать. Потому что, пробив контейнмент, нужно еще попасть в реактор, спрятанный глубоко внутри здания, в относительно узком бассейне. А прочее оборудование первого контура тоже находится под перекрытиями, которые надо пробить. Так что теоретически такое возможно, но вероятность этого очень мала.

Реакторный зал ВВЭР-1200 (похож на ВВЭР-1000). Корпус реактора внизу по центру.
Чем же грозит это попадание снаряда в сам ядерный реактор? Вопреки распространенному мнению, ядерного взрыва это не вызовет. Реактор не атомная бомба, даже если в момент аварии он будет работать на полную мощность. Ядерного взрыва не было ни в Чернобыле, ни в Фукусиме. Даже если в результате попадания в работающий на мощности реактор повредить стержни управления, а они у ВВЭР-1000 как раз сверху реактора, и каким-то образом вызвать разгон реактора, то он быстрее развалится и разгерметизируется, чем там успеет выделиться большая энергия в результате неуправляемой цепной реакции. Быстрее всего он просто разгерметизируется и произойдет выброс воды, пара и, возможно, и самого топлива, и реакция погасится сама собой.
Последствия же такой аварии будут сильно зависеть от многих факторов, включая состояние самого реактора и погодных условий. В худшем случае, если реактор в момент аварии работал на мощности, то возможен довольно мощный паровой взрыв в результате его разгерметизации. Если контейнмент поврежден, то радиоактивный пар и летучие элементы из поврежденного топлива будут частично выброшены наружу.
Йод-131
В первую очередь далеко может улететь летучий йод-131. Однако его период полураспада всего около 8 дней, и он будет представлять угрозу лишь короткое время. Но с точки зрения воздействия на организм он как раз может представлять главную угрозу для населения вокруг АЭС. Не случайно сейчас поступает информация, что украинские власти уже раздают населению в ближайших регионах препараты стабильного йода – таблетки йодида калия. Для возможной йодной профилактики. Дело в том, что йод накапливается в щитовидной железе. Поэтому перед возможным попаданием в облако выброса радиоактивного йода (изотопа йод-131) нужно сделать йодную профилактику — употребить стабильный йод. Он займет место в щитовидке и «не пустит» туда радиоактивный йод.

Йодид калия — препарат стабильного йода. Подходит для йодной профилактики
Запас таких препаратов — это правильная подготовительная мера на случай аварии. Тут только важно помнить, что йодную прафилактику надо правильно делать. Если вы купите раствор йода и начнете его пить, то можно и отравиться. Такие случаи на волне радиофобии и разных слухов об авариях на других АЭС уже не раз бывали. Если вы используете не таблетки йодида калия, а спиртовой раствор, то там используется всего несколько десятков капель на полстакана воды или молока. И детям его давать не рекомендуется.
О том как правильно делать йодную профилактику можно почитать тут — ссылка. Коротко — по таблетке в день для взрослых в течение 5 дней с начала возможного облучения. Детям дозировка меньше.
А про другие «лекарства от радиации» и способы выведения других изотопов была одна из первых моих статей на хабре — ссылка.
Ну и это мера в первую очередь для населения вблизи АЭС – в пределах десятков, максимум около сотни километров. Дальше йод, конечно, мождет улететь, но уже в меньших концентрациях. При этом он в первую очередь опасен для детей, а не для взрослых, в силу большей восприимчивости детского организма и ососбенностей поступления (возможно поступления с молоком и молочными продуктами, призведенными на загрязненной территории). Главное последствие – возможный рост риска возникновения рака щитовидной железы. Но все будет зависеть от объема выброшенного йода, его концентрации и погодных условий. Ну, если вообще до этого дойдет.
Еще раз напомню важную ссылку про правила йодной профилактики — ссылка.
И для понимания — сссылка на данные ВОЗ по медицинским последствиям облучения населения во время Ченобыльской аварии. Рак щитовидки там был вполне заметен и его как раз вполне можно йодной профилактикой избежать или существенно сократить.
Цезий-137
Второй опасный фактор возможного выброса при повреждении реактора — это изотоп цезий-137 с периодом полураспада уже 30 лет, который может вылететь с аэрозолями. В Чернобыле в большей степени именно он определял основное загрязнение территории в результате выброса.
Однако насколько далеко и как много его может улететь в результате аварии – тут очень широкий диапазон возможных последствий, потому что это зависит от многих факторов, и от характера аварии и выброса, и от погодных условий.
Во время чернобыльской катастрофы цезий улетел довольно далеко, облако действительно накрыло «всю Европу», но тут важны цифры: он улетел, но чем дальше, тем в меньших концентрациях он выпадал. Могу сказать, что его следы можно найти и в моем родном Екатеринбурге, за тысячи километров, но лишь с достаточно чувствительными приборами.

Карта загрязнения Европы цезием-137 в результате Чернобыльской аварии и глобальных выпадений (кликабельно). По ссылке в разрешении 7012x4958
Например, на карте выше видно, что фоновые уровни (два самых светлых оттенка, покрывающие всю Европу) — <2 кБк/м2 и <10 кБк/м2. Это условный фоновый уровень загрязнений в Европе, нам еще пригодятся эти цифры. Большая часть загрязнений на этих территориях была сформирована и до Чернобыля за счет глобальных выпадений 1960-х от испытаний ядерного оружия. Условный уровень загрязнения от глобальных выпадение в Европе — около 2 кБк/м2 (см Атлаc загрязнений Европы). Про это у меня тоже есть отдельная статья.
С точки зрения опасности для человеческого организма то, что улетело на расстояние далее нескольких десятков километров от выброса, чаще всего уже не представляет серьезной угрозы для здоровья в силу большого рассеяния. Впрочем, выпадения обычно идут не равномерно, могут быть пятнистыми из-за вымывающих их осадков (см карту выше), или образовывать длинный узкий шлейф (как от Кыштымской аварии), если будет устойчивый сильный ветер в какую-то одну сторону. Так же зона загрязнения будет зависеть от длительности выброса. В Чернобыле, например, он продолжался более недели, пока горел графит, так что смена ветра за это время направляла выбросы в разные стороны. Но для Запорожской АЭС, если выброс и будет, то скорее он будет кратковременный и разовый.
В одной из недавних статей, про окопы в рыжем лесу Чернобыля, я уже давал подробное пояснение того, как при оценке воздействия радиации на организм важны именно количественные оценки, а не качественные. Важно оценивать именно полученные дозы, а не просто ужасаться самому факту выброса. При аварии на АЭС Фукусима (да, про ее последствия у меня тоже есть отдельная статья), например, был выброс примерно в 10% от Чернобыльского.
Однако там вообще никто не погиб от воздействия радиации, даже среди работников станции Был лишь один случай спустя несколько лет, который довольно спорно притянули к аварии. Но в этих нюансах мало кто разбирается, обычно люди думаю что любое количество радиации опасно, забывая, что вокруг и внутри нас и природной радиации полно, от которой нам никуда не деться. Да и не надо. Увы, этим незнанием часто пользуются те, кто хочет манипулировать общественным мнением. Например, преувеличивая масштабы потенциальной аварии в политических целях, пугая мировое сообщество ядерной катастрофой в несколько Чернобылей.
Или, например, сейчас различные организации и эксперты, особенно антиядерной направленности, или просто не очень разбирающиеся в вопросе, любят показывать страшные карты моделирований возможного выброса от аварии на Запорожской АЭС с ресурса австрийского проекта-исследования FlexRISK.

Моделирование усредненного выпадения цезия-137 в Европе в результате серьезной аварии на Запорожской АЭС. Источник.
На этих картах действительно видно, как выброс накрывает всю Европу. Выглядит это очень эффектно и страшно. Но при этом мало кто обращает внимание на цифры загрязнений в этих моделях. А они зачастую вдали от точки выброса быстро снижаются до уровня фоновых.
Например, уровень ниже 10 кБк/м2 (см. карту чернобыльских выпадений выше) — это все что зеленого цвета и далее в сторону синего. Т.е. грубо говоря, за пределами Украины на запад добавка выпадений цезия будет в пределах того, что там и так уже лежит неколько десятилетий и не представляет угрозы для жизни и здоровья.
Можно посмотреть и на оценку доз, полученных населением от этих выпадений. Ниже представлена модельная карта доз для тех же условий. Точнее, вероятности для взрослого человека получить за первый год после аварии дозу более 2,5 мЗв. Скажу что 2,5 мЗв — это примерно вдвое меньше, чем каждый из нас в среднем получает за год от природных источников радиации. Так вот, судя по моделированию и карте, за пределами юго-восточной части Украины, вероятность получить дозу более 2,5 мЗв ниже 0,1. А практически на границе соседних государств она уже ниже еще на порядок.

Модельное распределение вероятности получения дозы более 2,5 мЗв за первый год после аварии
Впрочем, это усредненные по погодным условиям карты моделирований. Как я говорил выше, характер загрязнений будет сильно зависеть от погодных условий. И тут могут быть варианты. Например, при определенных погодных условиях модели даже показывают возможный шлейф в сторону Москвы:

Один из модельных сценариев загрязнения для погодных условий 30.01.1995 года. Если бы авария случилась тогда, то шлейф бы аккуратно пошел в сторону Москвы.
В результате таких условий, уровень загрязнений Кремля будет сопоставим с уровнями загрязнения в Брянской области от Чернобыльской аварии. Not great, not terrible.
Поэтому долететь-то до Европы или России что-то может, но нюанс в том, что это еще не означает, что все эти территории станут непригодны для жизни или вообще будут загрязнены действительно опасными для здоровья уровнями долгоживущих элементов. Подобные опасения базируются на определенной обывательской переоцененности масштабов Чернобыльской аварии на всю Европу и массе мифов, связанных с ней.
Желающие могут поиграться с изучением моделей выбросов на сайте FlexRISK. Для меня это ресурс относительно новый, и у меня пока к нему вопросов не меньше чем ответов. В частности, большой вопрос вызывает что именно заложено в их сценарий аварии, поскольку они закладывают туда выброс цезия от аварии на ВВЭР сопоставимый с тем, что был в Чернобыле (около 50 ПБк Cs-137).
Если реактор перед разрушением не работал
Я рассказал о наиболее опасном, но менее вероятном сценарии, когда через разрушенный контейнмент происходит попадание снаряда в работающий реактор, его разрушение и взрыв (паровой). И я сказал, что последствия сильно зависят от состояния реактора. Если реактор в момент аварии был остановлен уже какое-то время, особенно если речь о неделях, то в нем не будет ни большого давления, способного усилить энергию выброса, ни наиболее опасного для населения йода-131, который уже распался. Так что выброс, если он случится, будет менее опасным и по объему, и по составу.
Так что с точки зрения безопасности, реакторы Запорожской АЭС, вокруг которой идут обстрелы, лучше заглушить. И это уже частично сделано. Из шести энергоблоков до недавнего времени работали лишь три, и то на небольшой мощности. По уму следовало бы заглушить все энергоблоки до лучших времен, но сейчас один или два из них поддерживаются на минимальной мощности. Скорее всего причины для этого внешние и это связано с необходимостью поддержания частоты в энергосети Украины. Как я говорил – Запорожская АЭС чрезвычайно важный энергообъект для всей страны. Поэтому глушить или нет последние реакторы в текущей ситуации регулярных обстрелов – это непростой выбор между двумя нехорошими решениями, каждое из которых несет свои риски.
Хранилище топлива (СХОЯТ)
Что еще может случиться? Помимо реакторных отделений, на Запорожской АЭС есть еще одна площадка, где находится ядерное топливо. Это сухое хранилище отработавшего ядерного топлива — СХОЯТ. Раньше его вывозили на хранение и переработку в Россию, но уже много лет Украина от этой практики отказалась. Об этом я тоже рассказывал в отдельной статье с обзором мировой атомной энергетики за прошлый год, там был отдельный блок с рассказом про Украину, ее переориентацию на зарубежное топливо Вестингауз и про отказ от услуг Росатома по обращению с отработавшим топливом – ссылка.
Уже много лет Украина использует технологию, широко распространенную в США и многих других странах. Топливо после выгрузки из реактора и нескольких лет хранения в бассейнах выдержки в реакторных отделениях помещается в специальные толстостенные бетонные контейнеры и хранится на открытой бетонной площадке. СХОЯТ рассчитано на хранение 380 контейнеров, содержаих около 9000 отработавших топливных сборок. Но судя по спутниковым снимкам там сейчас около сотни контейнеров.

Площадка СХОЯТ. Источник.
Контейнеры довольно прочны и устойчивы к внешним воздействиям, они рассчитаны на транспортировку и возможные аварии при ней, на падение самолета и даже тестировались на попадание из гранатомета. Но они, конечно, тоже не рассчитаны на артобстрел и бомбардировки.
Вблизи площадки СХОЯТ уже были попадания снарядов и повреждения вспомогательных датчиков. Так что нельзя исключать варианта повреждения и самих контейнеров. Но опять же, в худшем случае речь будет идти о разрушении одного или нескольких из них, поврежденных прямым попаданием. Внутри у них нет ни горючих материалов, ни высокого давления, ни короткоживущих летучих элементов типа йода-131, который распался много лет назад. Так что скорее всего потенциальный ущерб – это разброс твердых фрагментов топлива и локальное загрязнение внутри и вблизи площадки АЭС.
Фукусимский сценарий
Давайте теперь поговорим о наиболее вероятном и опасном сценарии аварии, который частично уже начинает реализовываться. Атомная станция – это огромное сооружение. Тем более Запорожская АЭС. Она занимает площадь в несколько квадратных километров, и кроме реакторных отделений и СХОЯТ на ней расположены сотни зданий и сооружений. В них гораздо легче попасть случайно или целенаправленно и разрушить, поскольку они не так защищены. И это уже происходит – из-за обстрелов обрывались ЛЭП, повреждались открытое распредустройство, азотно-кислородная станция и т.д. В большинстве из этих сооружений нет никаких радиоактивных материалов, и их разрушение не приведет напрямую к радиационной аварии. Однако многие системы важны для нормального функционирования АЭС и ее систем безопасности.

Некоторые обьекты и сооружения на на площадке Запорожской АЭС. Схема моя.
Наиболее вероятно и опасно в таком случае полное обесточивание АЭС. Это сценарий Фукусимы. Даже после остановки реактора топливо в нем нужно охлаждать. Цепная реакция в нем прекращается, деление урана и плутония в нем прекращается, но продолжается распад радиоактивных элементов. Энерговыделение этого процесса меньше, но довольно существенно. Спустя несколько часов после остановки реактора энерговыделение топлива остается на уровне около 1% от номинального, и спадает далее примерно по экспоненте. Чтобы это тепло отводить нужна работа насосов, а для них электроэнергия.
Самое надежное – это брать ее из сети. Худший вариант – если нарушится энергоснабжение станции, будет ее отключение от внешних сетей. И из-за обстрелов и пожаров вокруг станции такие обрывы уже случались, но не всех линий. А вот 25 августа случился полный блэкаут, когда на небольшое время были отключены все 4 линии – три на 750 кВ и одна на 330 кВ. Такое полное отключение Запорожской АЭС от сети случилось впервые за всю ее 40-летнюю историю. Два остававшихся в работе на небольшой мощности блока, 5-й и 6-й, были отключены действием автоматики. На такой случай на станции имеются резервные дизель-генераторы, и они были задействованы, пока не была восстановлена одна линия на 330 кВ.
Но если восстановить линии электропередач быстро не удастся, а дизель-генераторы не сработают или в них кончится топливо, то ядерное топливо в реакторах и бассейнах выдержки будет нагреваться, разрушаться и в итоге плавиться, что приведет к радиационной аварии. Именно это случилось в Фукусиме, где из-за землетрясения и цунами случился и обрыв внешних линий, и затопление дизелей.
С нагревом топлива в реакторах АЭС Фукусима началось выделение водорода в результате пароциркониевой реакции взаимодействия оболочек тепловыделяющих элементов с водой. Образовавшаяся гремучая смесь привела к взрывам трех реакторных отделений японской станции и выбросу облака летучих изотопов.

Взрыв водорода на одном из блоков АЭС Фукусима
К счастью, на Запорожской АЭС в ходе постфукусимской модернизации установлены рекомбинаторы водорода, как и на всех современных АЭС поколений 3 и 3+. Рекомбинаторам не нужна энергия для работы, они химически преобразуют излишний водород обратно в воду и не дают образоваться его опасной концентрации в реакторном отделении. Так что взрывов и воздушного выброса как в Фукусиме на Запорожской АЭС быть не должно даже в случае перегрева топлива.
Однако с ростом температуры топливо будет разрушаться и плавиться, что может привести к проплавлению корпуса реактора и уходу образовавшейся смеси в подреакторное пространство. На современных АЭС есть специальные ловушки расплава, которые должны этот расплав удержать и охладить. Но на ВВЭР-1000/В-320 их нет, как не было их и на Фукусиме, и в Чернобыле.

Схема возможного выхода расплава топлива при тяжелой аварии на ВВЭР-1000 за пределы контейнмента. Источник.
Потенциально уход вниз расплава топлива грозит разгерметизацией контейнмента, загрязнением грунтовых и поверхностных вод. Именно загрязнение воды, которая случайно или намеренно попадала в потерявшие герметичность реакторы Фукусимы, создало наибольшие проблемы в Японии.

Схемы реальных расплавов активных зон реакторов АЭС Фукусима

Схема движения поверхностных вод по горизонту через аварийные блоки АЭС Фукусима в сторону океана
Сейчас на площадке АЭС Фукусима накоплено около миллиона тонн загрязненной воды, которую они смогли собрать и частично почистить. Но остальное утекло в океан.

Сотни баков с миллионом тонн загрязненной и частично почищенной воды на площадке АЭС Фукусима
В случае подобной аварии на Запорожской АЭС речь может идти о загрязнении Каховского водохранилища, Днепра и Черного моря. Но все будет зависеть от масштабов аварии и загрязнений.
Так что такой сценарий возможен. Но такая авария будет развиваться в худшем случае на протяжении нескольких часов, а возможно и дней. Перегрев не происходит одномоментно, и в этой ситуации у персонала, если ему помогать, а не мешать, будет время для того, чтобы успеть отреагировать и предотвратить худший сценарий.
По сути сейчас украинский персонал, который и продолжает работать на АЭС, ведет борьбу за живучесть станции в условиях невероятного стресса, восстанавливая повреждаемые системы и пытаясь не допустить аварийных ситуаций. Они все герои. И они же больше всего рискуют, так как большинство сценариев аварий грозит именно локальными загрязнениями и угрожает персоналу и находящимся на станции людям. Не говоря уже о других рисках, связанных с общей ситуацией вокруг станции и в Украине.
Выводы
Итак, в качестве выводов, я бы сказал, что в силу конструкционных особенностей, авария уровня Чернобыльской или Фукусимской на Запорожской АЭС маловероятна, если не невозможна. Тем не менее, аварии меньшего масштаба на ней в текущей ситуации возможны, в том числе с выбросом радиации, включая летучий йод. Возможно загрязнение речной системы или локальные загрязнения промплощадки. Поэтому никакие военные действия вокруг нее недопустимы и давно должны быть прекращены.
Важно, чтобы как можно скорее на станцию прибыла и заработала миссия МАГАТЭ — Международного агентства по атомной энергии, для независимой экспертизы ситуации на АЭС, как в техническом плане, так и в гуманитарном. Сегодня днем, 1 сентября, эта миссия туда прибыла:

Глава МАГАТЭ Рафаэль Гросси и состав первой миссии агентства на Запорожскую АЭС
Определенные опасения по поводу этой миссии были и есть и у Украины, и у России. Но лучше пусть она будет, чем нет. Хотя на самом деле нужна не разовая или временная миссия МАГАТЭ, а постоянное ее там присутствие, а еще важнее — полная демилитаризация АЭС и зоны вокруг нее. В добровольном ли порядке, по договоренности ли сторон, хотя это маловероятно, или с миротворцами ООН, или каким-то иным способом. На самом деле это не важно, любой способ подойдет и будет лучше, чем текущая ситуация. В конце концов по поводу вывоза украинского зерна через Черное море определенное решение с помощью мирового сообщества было найдено. По Запорожской АЭС, на которой не должно быть никаких и ничьих тяжелых вооружений, тоже нужно такое соглашение. Надеюсь, оно будет найдено в ближайшее время. И все описанные выше сценарии так и останутся лишь прогнозами и теоретическими рассуждениями.
Благодарности автору
Если вам понравилась статья, не забудьте поставить ей плюс и поделиться в соцсетях. Вы также можете почитать другие мои статьи на Хабре на атомную тематику, их уже 40 штук. Ссылки на многие из них вы видели по тексту.
Чтобы мои статьи выходили чаще, вы можете поддержать меня через Patreon (для зарубежных карт) или Boosty (для российских карт).
А также вы можете подписаться на мой Youtube-канал на атомную тематику. Видеоверсию этой статьи я там уже выложил.
Автор: Дмитрий Горчаков
